CRECI: 29.896-J (11) 99987-4273
chevron_left
navigate_next

R$ 129.000,00

Terreno à venda no Residencial Alamedas São José no bairro do Jacaré em Cabreúva/SP

Jacaré, Cabreúva - SP

176,00 m²

176,00 m²

0 quarto(s)

0 banheiro(s)

0 Vaga(s)

0 Suíte(s)

Descrição do imóvel

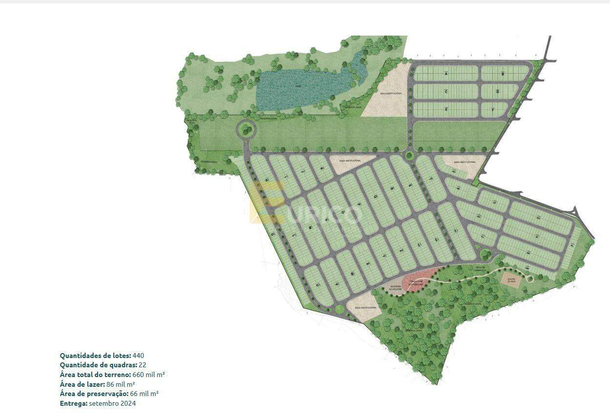
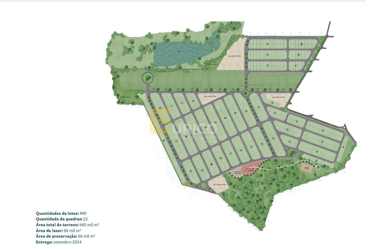
Localização estratégica, lazer completo e qualidade de vida em meio à natureza!

Apresentamos uma excelente oportunidade para você que deseja construir ou investir: terreno plano com 176 m², localizado no bairro do Jacaré, em Cabreúva.

Um bairro planejado que une conforto, praticidade e contato com a natureza, com mais de 86.000 m² de áreas verdes e espaços de lazer pensados para toda a família.
Este terreno possui topografia plana, ideal para a construção da casa dos seus sonhos ou de um projeto para investimento. O bairro oferece infraestrutura completa, com vias asfaltadas, redes de água, esgoto e energia elétrica, além de áreas de convivência e lazer.

Destaques da localização:

• Bairro em desenvolvimento, junto ao Bonfim e próximo do bairro Jacaré
• Fácil acesso à Rodovia Marechal Rondon (12 min)
• Escola Municipal a 5 minutos a pé
• Escola Estadual a 8 minutos a pé
• Próximo de grandes empresas da região:
- Pepsico – 16 minutos
- Avon – 18 minutos
- Natura – 17 minutos
- Coca-Cola – 25 minutos
- Ambev – 34 minutos

Entre em contato e agende uma visita!

imovel

Cód. imóvel: 26369

Valor

R$ 129.000,00

Condomínio

R$ 0,00

IPTU

R$ 80,00
Gisa Apolinário
CRECI 307119-F

Compartilhar:

Quero anunciar meu imóvel

Anunciar Agora

Encontrar imóvel ideal?

Não se preocupe. Deixe seu email e telefone que um especialista irá te ajudar.

Obrigado por entrar em contato!

Ao informar meus dados, eu concordo com a Política de Privacidade.

Imóveis Similares